DDL3系列單片電磁離合器只有一對摩擦付,它具有結構簡單,安裝方便,工作頻率高,動作靈敏,無空載力矩,噪聲低等特點,廣泛應用于印刷,造紙,包裝,醫療,建筑,紡織,船舶,辦公機械,計算機外圍設備,儀表,通訊等機械傳動系統中完成離合、換向、變速、制動、定位等功能。
離合器在下列條件下能可靠的工作:
1.周圍空氣溫度為-5℃--+40℃。
2.在無爆炸危險的介質中,且介質中無足以腐蝕金屬和破壞絕緣的氣體及導電塵埃。
3.離合器需在有潤滑油的條件下工作。
4.離合器線圈的電壓波動不超過+5%和-15%的額定電壓。
5.離合器安裝地點的海拔不超過2000米。
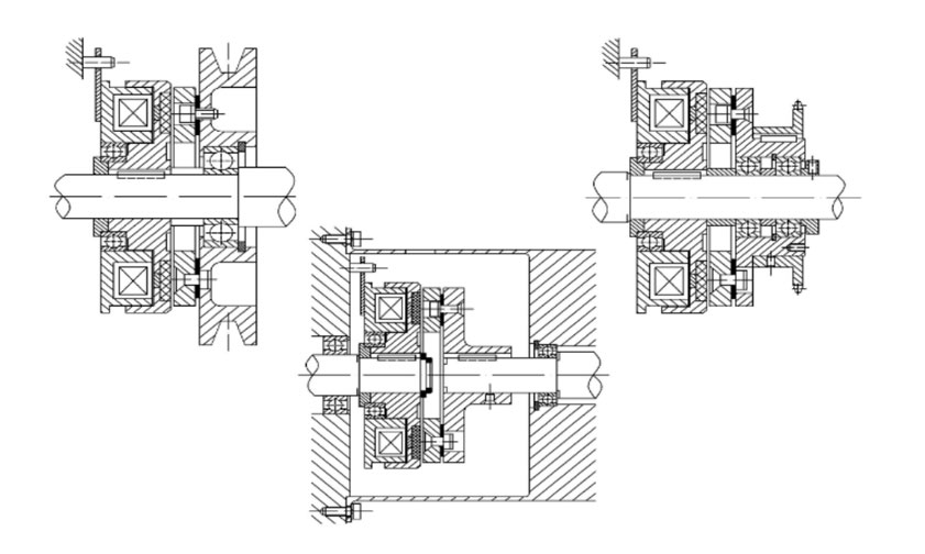
外形與安裝尺寸安裝示意圖
|
規格 |
D1 |
D2 |
D3 |
D4 |
D5 |
D6 |
L1 |
L2 |
L3 |
L4 |
L5 |
M1 |
M2 |
M3 |
R |
H1 |
H2 |
H3 |
|
1 |
85 |
80 |
60 |
41.5 |
25 |
85 |
34.5 |
54.5 |
63.5 |
16 |
25 |
30 |
20 |
29 |
2 |
65 |
57 |
10.5 |
|
2 |
106 |
100 |
76 |
51.5 |
30 |
106 |
39 |
64 |
74 |
20 |
30 |
33 |
25 |
35 |
2 |
70 |
62.5 |
11.5 |
|
4 |
133 |
125 |
95 |
61.5 |
40 |
133 |
44.5 |
74.5 |
90.5 |
24 |
40 |
37.5 |
30 |
46 |
2 |
85 |
77 |
11.5 |
|
8 |
169 |
160 |
120 |
79.5 |
55 |
169 |
50.5 |
88.5 |
107.5 |
3l |
50 |
41.5 |
38 |
57 |
3.2 |
112 |
100 |
l8.5 |
|
16 |
212.5 |
200 |
158 |
l00 |
70 |
212.5 |
62 |
104 |
13l |
33 |
60 |
51 |
42 |
69 |
3.5 |
140 |
125 |
20 |
|
25 |
253 |
241 |
185.5 |
120 |
85 |
253 |
70.5 |
120.5 |
147.5 |
38 |
65 |
58 |
50 |
77 |
4.5 |
156.5 |
141.5 |
24 |
|
規格
Size |
p1 |
p2 |
v1 |
v2
|
v3
|
X
|
E |
T |
t
|
G
|
O
|
N
|
S
|
U
|
W
|
m
|
ф
|
h
|
e
|
δ
|
|
1
|
16
|
5.5
|
4.1
|
8
|
7.5
|
2.8
|
31
|
8
|
M5
|
45
|
15
|
2
|
37
|
42-0.10
|
5
|
3-M4深6
|
15
|
17.30+0.1
|
5
|
0.2
|
|
2
|
16
|
6.5
|
5.1
|
10.5
|
9
|
3.8
|
41
|
10
|
M5
|
55
|
20
|
3
|
47
|
51.5-0.10
|
6
|
4-M4深8
|
20
|
22.80+0.1
|
6
|
0.2
|
|
4
|
16
|
6.5
|
6.1
|
12
|
11
|
5
|
49
|
12
|
M6
|
64
|
30
|
3
|
52
|
60-0.20
|
8
|
4-M4深8
|
25
|
28.30+0.2
|
8
|
0.3
|
|
8
|
25
|
8.5
|
8.1
|
15
|
14
|
6
|
65
|
15
|
M8
|
175
|
35
|
3
|
62
|
71-0.20
|
8
|
6-M5深8
|
30
|
33.30+0.2
|
8
|
0.3
|
|
16
|
25
|
8.5
|
10.2
|
20
|
18.5
|
8
|
83
|
16
|
M8
|
100
|
45
|
4
|
84
|
94.5-0.20
|
14
|
6-M6深12
|
45
|
48.80+0.2
|
14
|
0.5
|
|
25
|
30
|
12.5
|
10.2
|
20
|
18.5
|
8
|
100
|
18
|
M10
|
110
|
50
|
6
|
100
|
104-0.20
|
16
|
6-M6深12
|
55
|
59.30+0.2
|
16
|
0.5
|





